Wynajmę działający zakład gastronomiczny / kuchnia cateringowa wynajmę z wyposażeniem lub bez
Informacje podstawowe:
Kategoria
Sprzedam firmę
Województwo
mazowieckie
Miasto
Mińsk Mazowiecki
Cena sprzedaży
33 333 PLN
Zasięg przedsiębiorstwa
Cały kraj
Nieruchomość na własność
nie
ogłoszenie archiwalne
Dodano: 13 listopada 2023
Oferta ważna do: 27 listopada 2023
ID ogłoszenia: #9450
Ogłoszenie: Wynajmę działający zakład gastronomiczny / kuchnia cateringowa wynajmę z wyposażeniem lub bez jest archiwalne, gdyż ogłoszeniodawca go nie przedłużył. Na ten moment nie ma możliwości kontaktu z ogłoszeniodawcą. Pozostaw adres mailowy jeśli chcesz być powiadomiony o aktywowaniu ogłoszenia.
Opis ogłoszenia:
Wynajmę działający zakład gastronomiczny / kuchnia cateringowa wynajmę z wyposażeniem lub bez.
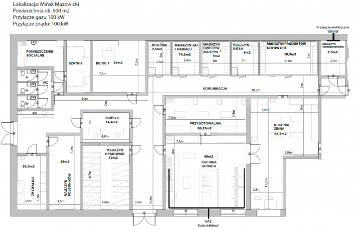
Lokalizacja: Mińsk Mazowiecki
Powierzchnia całkowita ok. 600m2
Spis pomieszczeń:
Przygotowalnia 26m2
Kuchania gorąca 60m2
Kuchnia zimna 66,5m2
Biuro1 56m2
Biuro2 14,4m2
Magazyn1 32m2
Magazyn2 28m2
Zmywak 20,5m2
Mroźnia 7,5m2
Chłodnia1 10m2
Chłodnia2 9m2
Chłodnia3 9m2
Chłodnia4 18,3m2
plus pomieszczenia socjalne i ciągi komunikacyjne
Przyłącze gazu: 100kW (butla 6400m3)
Przyłącze prądu: 100kW
Ciepła woda - odzysk ciepła z chłodni
Wentylacja z rekuperacją
Lokalizacja: Mińsk Mazowiecki
Powierzchnia całkowita ok. 600m2
Spis pomieszczeń:
Przygotowalnia 26m2
Kuchania gorąca 60m2
Kuchnia zimna 66,5m2
Biuro1 56m2
Biuro2 14,4m2
Magazyn1 32m2
Magazyn2 28m2
Zmywak 20,5m2
Mroźnia 7,5m2
Chłodnia1 10m2
Chłodnia2 9m2
Chłodnia3 9m2
Chłodnia4 18,3m2
plus pomieszczenia socjalne i ciągi komunikacyjne
Przyłącze gazu: 100kW (butla 6400m3)
Przyłącze prądu: 100kW
Ciepła woda - odzysk ciepła z chłodni
Wentylacja z rekuperacją
Zdjęcia:

Zobacz mapę:
Tagi:
catering Kuchnia produkcyjna kuchnia firma cateringowa
Zobacz również:
do negocjacji
Na sprzedaż w pełni funkcjonujący obiekt hotelowo-restauracyjny – Zajazd „Mistral”, Nowa Wieś
Gastronomia, lokale,
Usługi - inne,
opublikowano 02.02.2026
Wyjątkowa nieruchomość z ogromnym potencjałem inwestycyjnym – w pełni działający dochodowy kompleks przy ul. Krakowskiej 20, tuż przy trasie DK-1 Częstochowa–Katowice.
Oferta dostępna wyłącznie za naszym pośrednictwem.
• Najważniejsze atuty:
• d...
do negocjacji
OFF MARKET – obiekt hotelowo-gastronomiczny | Jura | 20 km od Częstochowy
Gastronomia, lokale,
Usługi - inne,
opublikowano 04.02.2026
Na sprzedaż w pełni funkcjonujący obiekt hotelowo-gastronomiczny zlokalizowany na Śląsku, w atrakcyjnym turystycznie rejonie Jury Krakowsko-Częstochowskiej, ok. 20 km od Częstochowy.
Podstawowe parametry:
-powierzchnia użytkowa: ok. 706,6 m²
-p...
do negocjacji
OFERTA OFF MARKET DLA INWESTORÓW
Gastronomia, lokale,
opublikowano 02.02.2026
Na sprzedaż dwa dochodowe, w pełni funkcjonujące biznesy, generujące stabilne przychody i prowadzone w modelu operacyjnym „pod klucz”.
✔ ugruntowana pozycja na rynku
✔ realne wyniki finansowe
✔ gotowe struktury operacyjne
✔ możliwość dalszego r...
10 200 000 PLN
Gotowy, Dochodowy Pub w Stylu Irlandzkim z Potencjałem Rozwoju
Gastronomia, lokale,
opublikowano 11.04.2026
Na sprzedaż rozpoznawalny, w pełni funkcjonujący biznes gastronomiczny w unikalnym, irlandzkim stylu — zlokalizowany bezpośrednio przy linii brzegowej jeziora Trzesiecko w Szczecinku.
To gotowy produkt inwestycyjny, generujący stabilne zyski, z du...
do negocjacji
60 000 PLN
do negocjacji
do negocjacji
do negocjacji
3 500 000 PLN
do negocjacji
do negocjacji
1 750 000 PLN
1 000 000 - 12 300 000 PLN
do negocjacji
9 000 PLN
3 700 000 PLN
2 300 000 PLN
330 000 PLN
do negocjacji
6 900 000 PLN
do negocjacji
do negocjacji
do negocjacji
2 100 000 PLN
do negocjacji
6 350 PLN
67 800 000 PLN
8 960 000 PLN
100 000 - 100 000 000 PLN
350 000 PLN
do negocjacji
85 000 PLN
do negocjacji
do negocjacji
6 800 000 PLN
do negocjacji
20 PLN
13 500 000 PLN
