Budowa kompleksu rekreacyjno - hotelowego nieopodal Warszawy
Informacje podstawowe:
Kategoria
Sprzedam firmę
Miasto
Klukówek
Cena sprzedaży
5 000 000 PLN
Zasięg przedsiębiorstwa
Lokalny
ogłoszenie archiwalne
Dodano: 15 marca 2019
ID ogłoszenia: #1564
Ogłoszenie: Budowa kompleksu rekreacyjno - hotelowego nieopodal Warszawy jest archiwalne, gdyż ogłoszeniodawca go nie przedłużył. Na ten moment nie ma możliwości kontaktu z ogłoszeniodawcą. Pozostaw adres mailowy jeśli chcesz być powiadomiony o aktywowaniu ogłoszenia.
Opis ogłoszenia:
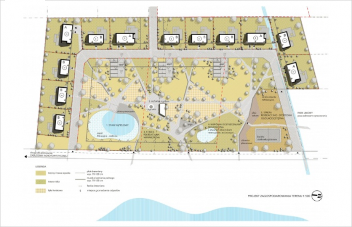
Posiadam przygotowany do realizacji projekt budowy kompleksu domów rekreacyjnych (lub hotelowego) nad urokliwym rozlewiskiem w otoczeniu lasów w odległości 55 km od Warszawy. Na kompleks składają się:
- dwadzieścia pięć indywidualnych domów;
- budynek restauracyjny (hotelowy);
- część rekreacji i wypoczynku ( ogród leśny, park linowy, naturalny staw kąpielowy itd.).
Całość na terenie ok 4,5 hektara. Posiadam decyzje o warunkach zabudowy. W przygotowaniu inwestycje w doprowadzenie mediów. Teren rekreacyjny już powstał w 2018 r. ( dotychczasowe i planowane na obecny rok inwestycje w infrastrukturę wspólną wynoszą 450 tys zł). Aktualnie w trakcie realizacji - I etap budowy ogrodowego spa oraz miejsc noclegowych w całorocznych namiotach ( jurtach).
Możliwość zabudowy całorocznej w tym w opcji osiedla senioralnego.
Dobra komunikacja - w pobliżu stacja kolejowa (3 km, lotnisko w Modlinie 25 km).
- dwadzieścia pięć indywidualnych domów;
- budynek restauracyjny (hotelowy);
- część rekreacji i wypoczynku ( ogród leśny, park linowy, naturalny staw kąpielowy itd.).
Całość na terenie ok 4,5 hektara. Posiadam decyzje o warunkach zabudowy. W przygotowaniu inwestycje w doprowadzenie mediów. Teren rekreacyjny już powstał w 2018 r. ( dotychczasowe i planowane na obecny rok inwestycje w infrastrukturę wspólną wynoszą 450 tys zł). Aktualnie w trakcie realizacji - I etap budowy ogrodowego spa oraz miejsc noclegowych w całorocznych namiotach ( jurtach).
Możliwość zabudowy całorocznej w tym w opcji osiedla senioralnego.
Dobra komunikacja - w pobliżu stacja kolejowa (3 km, lotnisko w Modlinie 25 km).
Zdjęcia:








Zobacz mapę:
Tagi:
budowa kompleks rekreacyjno-hotelowy domy rekreacyjne
Zobacz również:
2 100 000 PLN
Działający ośrodek wczasowy nad Bałtykiem
Turystyka, hotele,
opublikowano 12.11.2025
Na sprzedaż – Ośrodek Wczasowy w Mrzeżynie
Powierzchnia działki: 1974 m² (19,74 ara)
Cena : 2190000
Opis nieruchomości
Na sprzedaż funkcjonujący, cieszący się doskonałą opinią ośrodek wczasowy w popularnej nadmorskiej miejscowości Mrzeżyn...
do negocjacji
Sprzedam kopalnie piasku i żwiru z aktualną koncesją - Sidłowo (powiat świdwiński)
Budownictwo,
Handel hurtowy i detaliczny,
Nieruchomości komercyjne,
opublikowano 29.08.2025
Sprzedam grunt 19 ha w miejscowości Sidłowo (gmina Sławoborze, powiat świdwiński) z pokładami piachu i żwiru z koncesją na prawie 9 ha (do 2035r.) z możliwością rozszerzenia. Pełna dokumentacja geologiczna, łączne zasoby możliwe do wydobycia to ponad...
do negocjacji
OGŁOSZENIE O NABORZE PODWYKONAWCÓW
Budownictwo,
opublikowano 28.11.2025
Firma Abastran, działająca w sektorze budowlanym, zaprasza do składania ofert współpracy w charakterze podwykonawców w zakresie realizacji prac montażowych na terenie całej Polski.
Przedmiot współpracy
Zakres prac obejmuje:
-montaż konstrukcji s...
15 000 PLN
Hostel z meblami Warszawa Wola 40os.+cesja wynajmu domu 380m2 -9 pokoi
Turystyka, hotele,
opublikowano 06.01.2026
Oferta ważna tylko w dniach 06 stycznia do 31 stycznia2026r.
Sprzedam działający hostel wraz z cesją wynajmu budynku mieszkalnego na Woli (szeregowiec) 380m2 z 9 pokojami (3,4,5 i 6 osobowych) na 40 osób, kuchnia, 3 łazienki. Budynek wynajmowany n...
do negocjacji
Sprzedam spółkę z o.o. posiadającą nieruchomości, należności ale również zobowiązania
Budownictwo,
zaktualizowano 28.01.2026
Sprzedam lub inne propozycje, spółkę posiadającą spory majątek - nieruchomości i należności dochodzone w sądzie - ale również zalegle zobowiązania. Poszukuję osoby która skutecznie zajmie się odzyskaniem należności, optymalnym zagospodarowaniem nieru...
3 499 000 PLN
12 900 PLN
do negocjacji
1 750 000 PLN
2 300 000 PLN
do negocjacji
3 700 000 PLN
100 000 PLN
do negocjacji
do negocjacji
3 500 000 PLN
do negocjacji
do negocjacji
do negocjacji
do negocjacji
do negocjacji
350 000 PLN
do negocjacji
do negocjacji
do negocjacji
do negocjacji
2 000 000 - 5 000 000 PLN
do negocjacji
do negocjacji
do negocjacji
1 000 000 - 12 300 000 PLN
100 000 - 100 000 000 PLN
do negocjacji
11 500 000 PLN
do negocjacji
9 000 PLN
do negocjacji
