Działka inwestycyjna w centrum miasta
Basic information:
Category
Sell a company
Industry
Commercial real estate
Province
śląskie
City
Tychy
Street
Harcerska
Selling price
235 000 PLN
Company reach
Lokalny
archived advertisement
Added: 04 january 2019
ID of the advertisement: #817
Advertisement: Działka inwestycyjna w centrum miasta is archived because the advertiser did not renew it. At the moment, there is no way to contact the advertiser. Leave your email address if you want to be notified when the advertisement is activated.
Ad description:
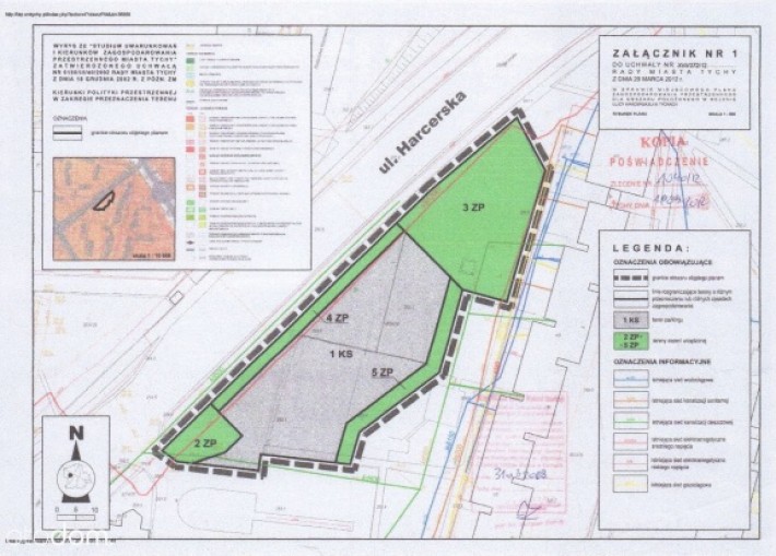
Na sprzedaż działka inwestycyjna o powierzchni 3495m2 w Tychach, w doskonałej lokalizacji przy ul. Harcerskiej. Cena 235 000 (netto)
Dla działki obowiązuje miejscowy plan zagospodarowania przestrzennego - przeznaczenie parking samochodów (najem) . Użytkowanie wieczyste
Możliwość dokupienia projektu inwestycyjnego z gotową dokumentacją techniczną, przygotowanego dla tej działki dla parkingu naziemnego dla 67 samochodów oraz budynku 16 m2.
Dla działki obowiązuje miejscowy plan zagospodarowania przestrzennego - przeznaczenie parking samochodów (najem) . Użytkowanie wieczyste
Możliwość dokupienia projektu inwestycyjnego z gotową dokumentacją techniczną, przygotowanego dla tej działki dla parkingu naziemnego dla 67 samochodów oraz budynku 16 m2.
Photos:



Watch the map:
Tags:
See also:
3 700 000 PLN
Sprzedam nieruchomość - hale wraz z maszynami
Commercial real estate,
Furniture, wood industry, equipment,
Production ,
updated 06.03.2026
LOKALIZACJA
Jelenia Góra, ul. Dworcowa 16
CENA: 3.700.000, 00 zł netto (w cenę nie wlicza się parku maszynowego)
OPIS NIERUCHOMOŚCI
Działka o powierzchni 14.681 m² (w tym 3.320 m² dzierżawione od prywatnego właściciela z możliwością prze...
13 500 000 PLN
Biurowiec z najemcami, Działka 8.483 m2, Montażowa 3
Commercial real estate,
published 17.11.2025
Zapraszamy do zakupu nowoczesnego biurowca z zabudowaniami pomocniczymi znajdującego się w Bielsku-Białej przy ul. Montażowej 3.
Cały kompleks położony jest na działce o powierzchni 0,8483 ha i składa się z 3 budynków:
Budynek główny, biurowy,...
1 000 000 - 12 300 000 PLN
65% Dotacja, inwestycja z widokiem na morze, loża cygar, jacuzzi infinity pool, galeria Sprawdzony model 20% ROI z wynajmu 100%
Commercial real estate,
published 05.08.2025
Unikalna inwestycja premium zlokalizowana pomiędzy Gdynią a Sopotem z widokiem na morze, lożą cygar, jacuzzi infinity pool, galeria sztuki i 24-ma apartamentami Premium Art
Na inwestycję możliwe jest uzyskanie aż 65% dotacji w ramach EKO Kredytu...
67 800 000 PLN
Sprzedam nieruchomość - hala produkcyjno-magazynowa
Furniture, wood industry, equipment,
Commercial real estate,
Production ,
published 25.02.2026
CENA: 67.800.000, 00 zł netto do negocjacji (w cenę nie wlicza się parku maszynowego)
OPIS NIERUCHOMOŚCI
Przedmiotem ogłoszenia jest nieruchomość przemysłowa stanowiąca zorganizowany kompleks przemysłowo-produkcyjny, obejmujący halę produkcyjn...
6 800 000 PLN
Nieruchomość - teren 5,7 ha wraz z halą magazynową 1500 m2
Commercial real estate,
published 09.03.2026
CENA: 6.800.000, 00 zł netto do negocjacji
OPIS NIERUCHOMOŚCI
Przedmiotem ogłoszenia jest nieruchomość gruntowa zabudowana składająca się z trzech działek ewidencyjnych o numerach 72/1, 72/2, 80,6 o łącznej powierzchni 5,7030 ha, położnych w J...
negotiable
negotiable
negotiable
negotiable
9 000 PLN
negotiable
negotiable
2 300 000 PLN
1 750 000 PLN
negotiable
60 000 PLN
3 500 000 PLN
negotiable
negotiable
10 200 000 PLN
350 000 PLN
2 100 000 PLN
6 900 000 PLN
negotiable
783 311 PLN
negotiable
6 350 PLN
negotiable
negotiable
330 000 PLN
20 PLN
85 000 PLN
100 000 - 100 000 000 PLN
negotiable
8 960 000 PLN
negotiable
negotiable
negotiable
negotiable
negotiable
