Aparthotel, condohotel, dom, willa, apartament, hotel, wynajem - Sopot, Gdynia Orłowo
Basic information:
Advertisement: Aparthotel, condohotel, dom, willa, apartament, hotel, wynajem - Sopot, Gdynia Orłowo is archived because the advertiser did not renew it. At the moment, there is no way to contact the advertiser. Leave your email address if you want to be notified when the advertisement is activated.
Ad description:
Oferta dotyczy sprzedaży Kamienicy w odległości 1,6km od Plaży Orłowo.
Działka położona jest w spokojnej części osiedla, w otoczeniu domów jednorodzinnych i wielorodzinnych. Blisko znajduje się skm 600m, sklepy w tym Biedronka, apteka, bankomat, stacja paliw, przedszkole i szkoła.
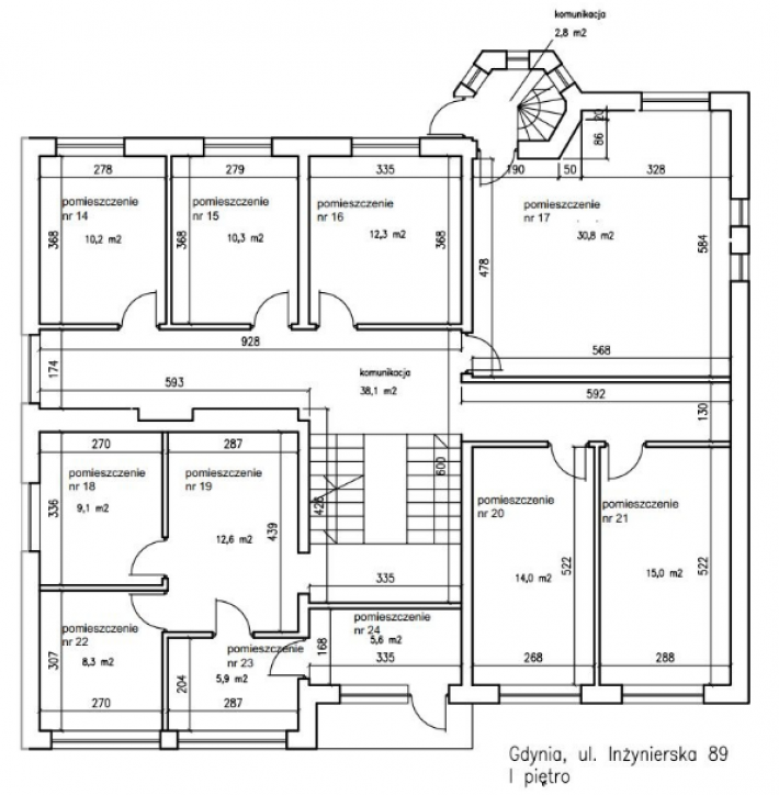
Powierzchnia kamienicy wynosi 1100 m2
Zestawienie Pomieszczeń:
1- Parter- 37. 13 - wysokość 2,7m
2- Parter- 36. 59
3- Parter- 36. 03
4- Parter- 45. 67
5-I piętro- 36. 59
6-I piętro- 36. 03
7-I piętro- 45. 67
8-I piętro- 37. 13
9-II piętro- 36. 59
10-II piętro- 36. 03
11-II piętro- 45. 67
12-II piętro- 37. 13
13-3 piętro- 36. 59
14-3 piętro- 36. 03
15-3 piętro- 45. 67
16-3 piętro- 37. 13
17-Piwnica - ok 160m2 - wysokość 3m
Najwyższy budynek w Orłowie z dostępem do Basenu na Dachu
Ponadto dostęp do: Spa, Jackuzzi, Strefy relaksu, restauracji, siłowni.
Nieruchomość zostanie oddana do użytku w stanie do generalnego remontu (zdjęcia przedstawiają przykładową aranżację). Remonty w częściach wspólnych mogą być zrealizowane w całości, osobne rozliczenie. Budynek wyposażony w przyłącza instalacji elektrycznej, wodno- kanalizacyjnej, gazowej. Budynek posiada instalację: telewizyjną, monitoringową, domofonową.
Mieszkanie idealne na wynajem lub dla siebie dla spędzania czasu w spokojnej części miasta a zarazem blisko plaży i Skm.
Komfort mieszkania w prestiżowej kamienicy dodaje lokalizacja blisko drzew i parków.
Inwestycja doskonała na wynajem, Możliwe: bezobsługowe zarządzanie przez zarządcę czyli obieranie czynszu i opłat za mieszkanie oraz rozliczanie z właścicielem za opłatą do uzgodnienia.
Obiekt monitorowany i zamknięty od ulicy, co sprawia że jest Bezpiecznie i nikt z zewnątrz nie ma wstępu na teren posesji.
Oferta jest w przedsprzedaży dlatego tak dobra cena za m2. Od Zaraz
Dokładne rzuty i wymiary oraz inne konfiguracje przedstawimy na spotkaniu.
Photos:









Watch the map:
Tags:
aparthotel condohotel willa apartament Hotel wynajem kamienica
See also:
